Einzigartige Gelegenheit: Dachbodenrohling in Hassee mit Baugenehmigung
Ausbauobjekt in Kiel · 54.000 € VB
Eckdaten
Adresse
Rendsburger Landstraße 88a | 24113 Hassee, Kiel, 24113 Kiel, Schleswig Holstein
Einschätzung
Das Angebot beschreibt einen Dachgeschoss-Rohling mit Baugenehmigung, der als Ausbauobjekt klassisch
Vorteile
- Baugenehmigung liegt vor, kein Verzögerungsrisiko.
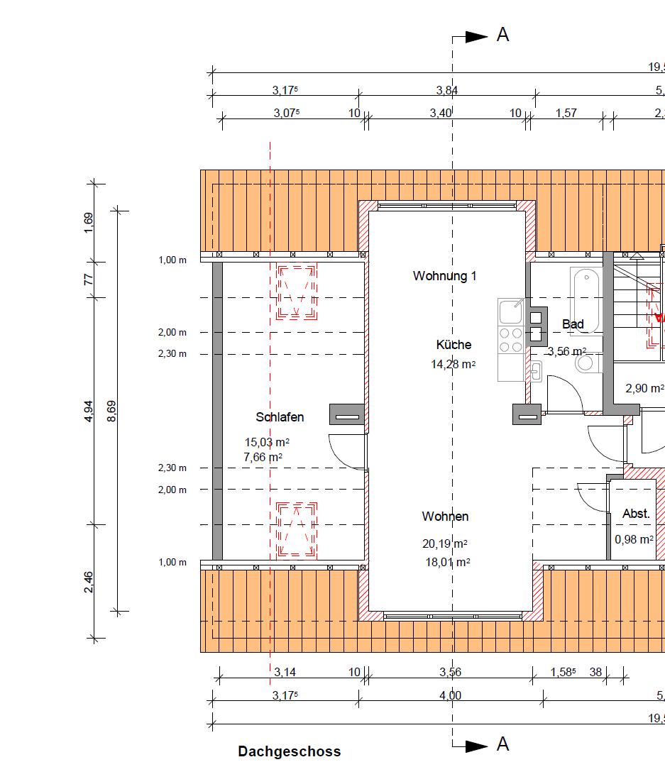
- Großzügige Wohnfläche von 54,05 m² für individuelle Gestaltung.
- Lage in Kiel-Hassee, gut angebunden und belebte Nachbarschaft.
Nachteile / Risiken
- Keine Angaben zu Baukosten für Fertigstellung.
- Offene Bauarbeiten, Unsicherheit bei Fertigstellung und Qualität.
- Risiko, dass Kosten und Zeitrahmen höher ausfallen als geplant.
Lage
Belebte, gut angebundene Lage in Kiel-Hassee. Alles für den Alltag fußläufig, aber gemischtes Umfeld.
Sanierungskosten
Sanierungskosten für diesen Dachbodenausbau liegen wahrscheinlich im mittleren bis oberen Bereich.