Individuell geplantes Ausbauhaus von Kern-Haus!
Ausbauobjekt in Erfurt · 509.906 €
Eckdaten
Adresse
99092 Bindersleben, Erfurt, 99092 Erfurt, Thüringen
Einschätzung
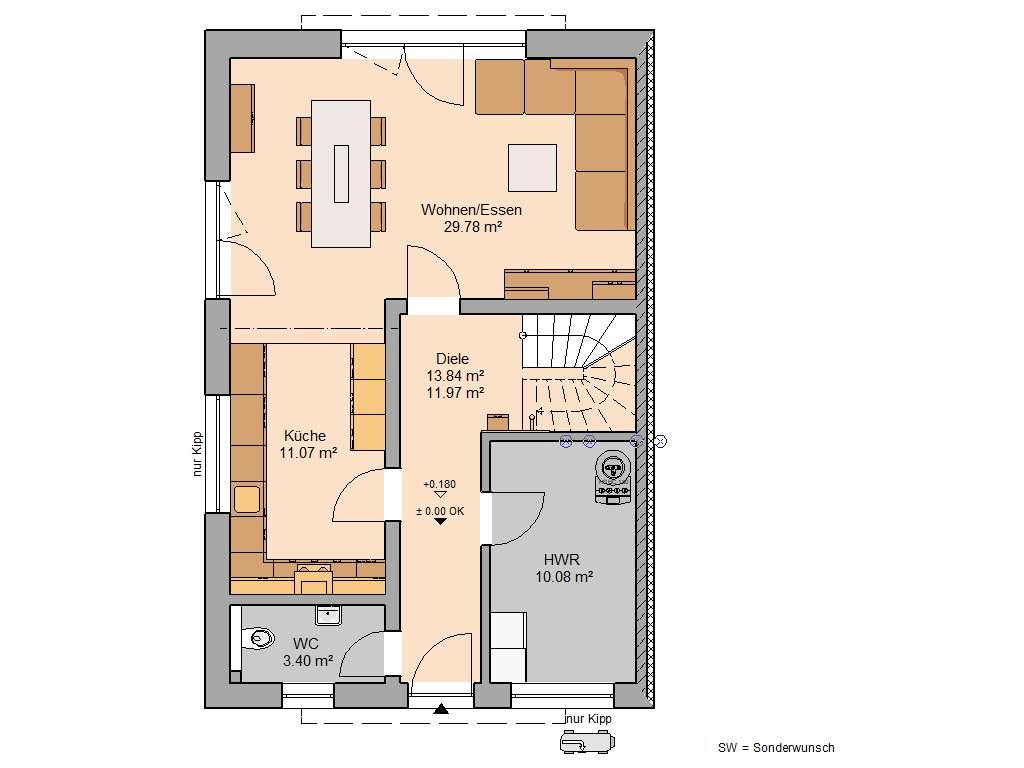
Das Objekt ist ein individuell geplantes Ausbauhaus, was typisch für ein Ausbauobjekt ist. Es wird '
Vorteile
- Neues Haus, Baufertig 2025.
- Individuelle Planung möglich.
- Großer Dachgeschoss-Rückzugsraum.
- Gute Erreichbarkeit aller Räume im Erdgeschoss.
Nachteile / Risiken
- Hohe Gesamtkosten von €545.599.
- Nur Wohnungskauf, kein Haus im eigentlichen Sinne.
- Lage mit 61% Score nur durchschnittlich.
- Kein zusätzlicher Renovierungsbedarf ist bekannt, aber unklar, ob Wartungsaufw</
Lage
Bindersleben, westlicher Stadtrand Erfurt, Tram vor der Tür, Nähe Einkaufsmöglichkeit.
Sanierungskosten
Die Sanierungskosten liegen wahrscheinlich im oberen Bereich wegen Baujahr 2025 und der hochwertigen Bauweise.