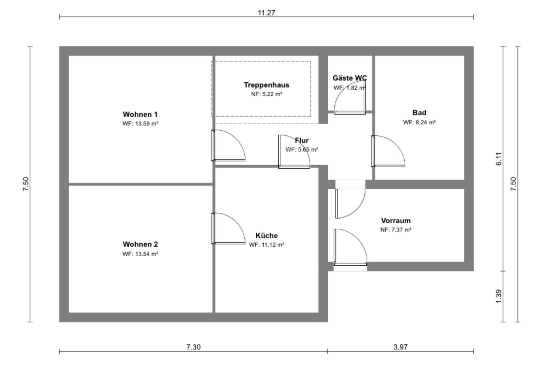
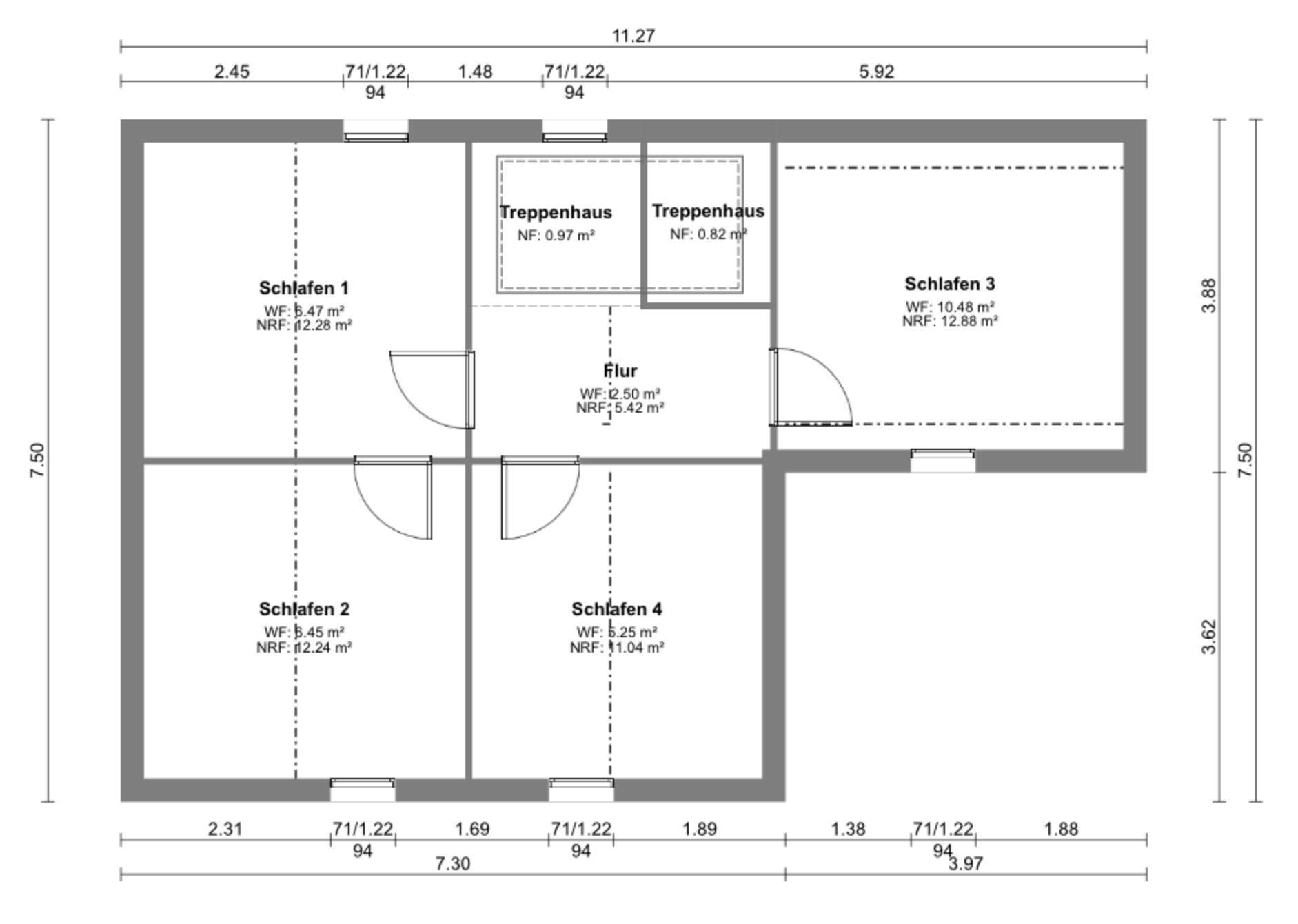
Renovierungsobjekt in Leipzig Kreis · 165.000 € VB




Attraktives Sanierungsobjekt mit mittlerem Aufwand in ruhiger Lage Neukieritzsch. Eignet sich für Eigennutzer mit Renovierungsbereitschaft. Details zu Bauschäden fehlen, Heizungs-Ä
Ruhige Seitenstraße nahe Wald in Neukieritzsch, solide Kleinstadtlage.
Sanierungskosten für dieses Haus in Neukieritzsch liegen schätzungsweise im mittleren Bereich.
Details in App ansehen Original auf ImmoScout24
Zum Originalinserat bei ImmoScout24: Öffnen