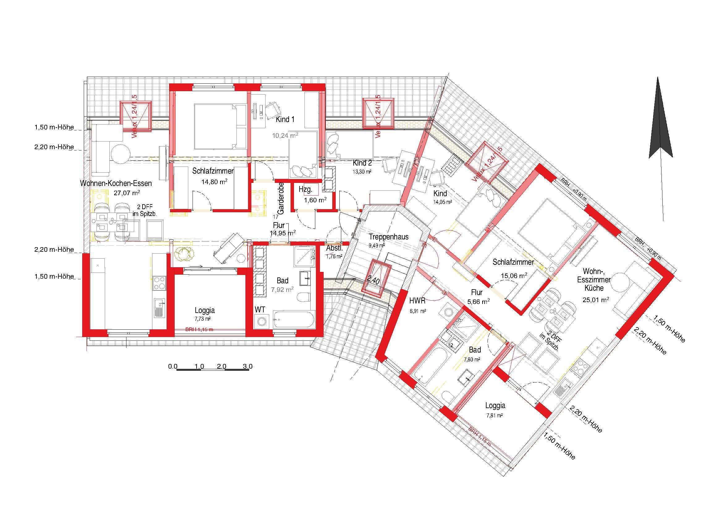
Ausbaufähiges Penthouse-Dachgeschoss mit viel Potenzial – 165 m² Wohnfläche, flexibel nutzbar
Ausbauobjekt in Hannover · 199.000 € VB
Eckdaten
Adresse
30625 Kleefeld, Hannover, 30625 Hannover, Niedersachsen
Einschätzung
Das Objekt ist ein Rohdachboden mit Baugenehmigung zum Ausbau, es handelt sich um ein Dachgeschoss,
Vorteile
- Großzügige Wohnfläche von ca. 165 m².
- Flexible Nutzungsmöglichkeiten als eine große oder zwei separate Wohnungen.
- Individuelle Gestaltungsmöglichkeiten bei Ausbau, Materialwahl und Grundriss.
- Lage in ruhiger, gewachsener Wohnlage mit Nähe zu Parks.
Nachteile / Risiken
- Kein Fahrstuhl im Gebäude, altbautypisch.
- Keine Angaben zu aktuellen baulichen Mängeln oder Renovierungsbedarf.
- Risiken oder offene Fragen hinsichtlich der tatsächlichen Ausbaukosten und -zeit
Lage
Ruhige, gewachsene Wohnlage in Kleefeld, fußläufig zur Eilenriede und Parks. Gute Nahversorgung und ÖPNV-Anbindung.
Sanierungskosten
Vor 1970 gebaut, eher obere Bandbreite bei Sanierungskosten.