Interaktive Ansicht

Eigentumswohnung Nr. 5 – Eigentumswohnung mit Potenzial in ländlicher Lage

Renovierungsobjekt in Vorpommern Rügen Kreis · 39.465 €

Eckdaten

Preis
39.465 €
€/m²
500 €/m²
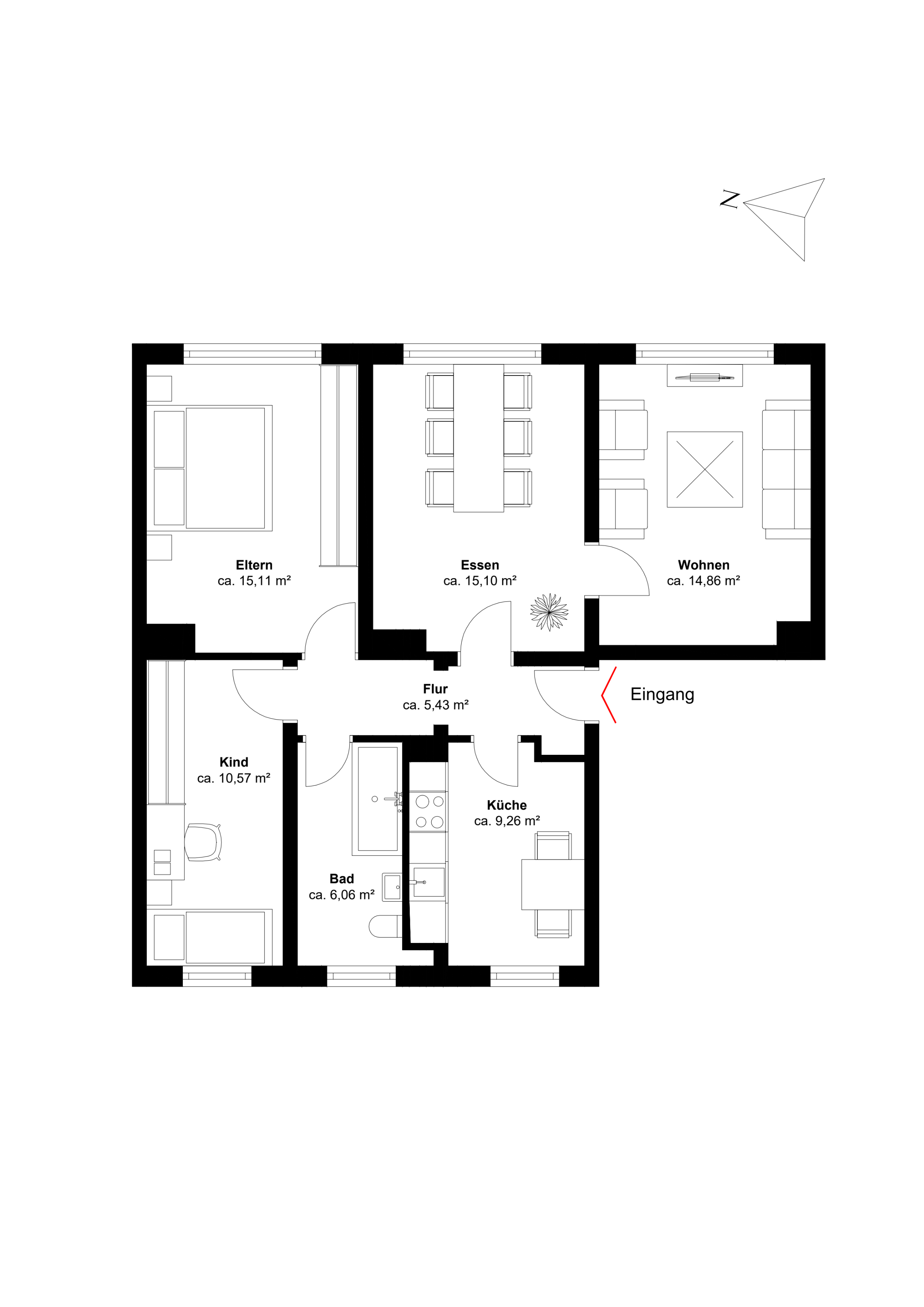
Wohnfläche
78 m²
Zimmer
4 Zi
Baujahr
1960
Adresse
18445, Altenpleen, 18445 Vorpommern Rügen Kreis, Mecklenburg Vorpommern
Zustand
Renovierungsobjekt

Einschätzung

stark sanierungsbedürftige Wohnung mit vollständiger Innenmodernisierung nötig, Elektro und Sanitär erneuern, Hauptgebäudeheizung 2024 modernisiert, hoher Sanierungsaufwand bei kle

Vorteile

Nachteile / Risiken

Lage

Ländlich, Nähe Stralsund, gute Infrastruktur.

Sanierungskosten

Min
700 €/m²
Mittel
1.000 €/m²
Max
1.500 €/m²

Für die Sanierung einer 78,93 m² Wohnung in Altenpleen wird ein hoher Aufwand geschätzt.

Marktwert (saniert)

Min
105.000 €
Mittel
120.000 €
Max
135.000 €

Nächste Schritte

Details in App ansehen Original auf ImmoScout24

Zum Originalinserat bei ImmoScout24: Öffnen