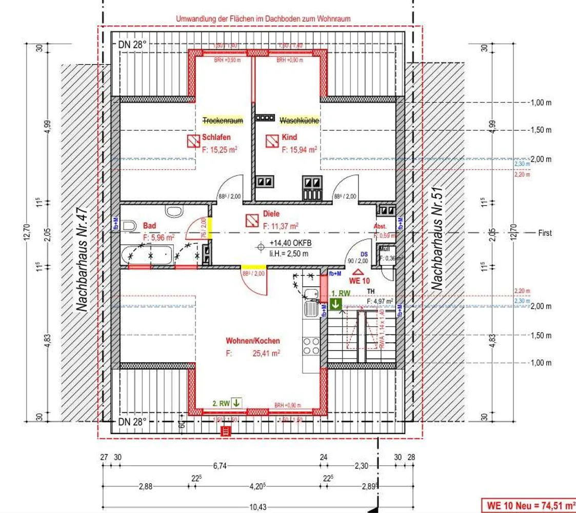
Genehmigte DG-Ausbaureserve mit neuen Gauben – sofort realisierbar
Ausbauobjekt in Essen · 59.000 €
Eckdaten
Adresse
45138 Südostviertel, Essen, 45138 Essen, Nordrhein Westfalen
Einschätzung
Die Anzeige beschreibt eine Dachgeschoss-Ausbaureserve mit neuen Gauben und gültiger Baugenehmigung,
Vorteile
- Baugenehmigung für den Ausbau liegt vor.
- Gebäude bereits energetisch aufgewertet.
- Dacheindeckung wurde vollständig erneuert.
- Neue Gauben geschaffen.
Nachteile / Risiken
- Keine konkreten Angaben zu aktuellen Miet- oder Verkaufswerten.
- Keine Hinweise auf den Zustand der Innenräume.
- Risiken und mögliche Kosten für den Ausbau nicht genannt.
- Keine Angaben zu eventuellen Altlasten im Dachgeschoss.
Lage
Zentrale, urbane Wohnlage mit guter Nahversorgung und Verkehrsanbindung. Stabiler Standard für Essen, aber kein Prime.
Sanierungskosten
Sanierungskosten liegen wahrscheinlich zwischen 200 und 400 EUR/m².